قدم اللاعب الأردني سليم عبيد اعتذاره عن الموقف الذي صدر من بعض لاعبي المنتخب الأردني، الذين رفضوا مصافحة مدرب المنتخب المغربي طارق السكتيوي،...
رئيس مجلس الإدارة : د. خالد بن ثاني آل ثاني

رئيس التحرير: جابر سالم الحرمي

مساحة إعلانية
أكّدت هيئة الأشغال العامة "أشغال" مواصلة استثمارها في تطوير الكفاءات والطاقات القطرية، وذلك تحقيقاً لمبدأ التنمية البشرية التي تعتبر أحد الركائز الأساسية في رؤية قطر الوطنية 2030. ويأتي تركيز "أشغال" المستمرّ على تعزيز الكفاءات الإدارية الوطنية باعتبارها إحدى أبرز الجهات الحكومية المسؤولة عن المساهمة في تحقيق التنمية الشاملة والاستدامة، وذلك من خلال تطوير البنية التحتية والمباني والمنشآت العامّة في مختلف أنحاء الدولة وفق استراتيجية بعيدة المدى وخطط تطويرية واضحة. تولي "أشغال" اهتماماً كبيراً بالارتقاء بمهارات العنصر البشري بشكل خاص نظراً لكونه المكّون الأساسي لأية مؤسسة ناجحة. فهو أداة لا غنى عنها لتحقيق أهدافنا المنشودة، حيث نرى أنّ كفاءة المدراء والموظفين هي القاسم المشترك لكافةالمحاور الاستراتيجية المؤسسية للهيئة من التركيز على العملاء الذي يتطلّب فريق عمل مدرّبومتفان،إلى الشراكات الاستراتيجية والشؤون التنفيذية، مروراً بالنمو المستدام وسرعة الاستجابة. وسعياً لتحقيقها مستويات كفاءة عالية عبر الاستفادة من تجاربها السابقة في صقل خبرات فريق العمل وتطويرها، تحرص "أشغال" دائماً على وضع الخطط والبرامج التطويرية قصيرة وبعيدة المدى واستغلال التقنيات الحديثة بالشكل الأمثل لدعم هذه البرامج،بحيث تكون الهيئة جاهزة للتغيير وقادرة على التكيّف والتنفيذ السريع لمشاريعها، وبالتالي تقديم قيمة مضافة لعملها والمحافظة عليها. برامج تطوير الموارد البشرية في إطار تطوير الأفراد والكفاءات، تعتمد "أشغال" مجموعة من البرامج المختصّة بتطوير فرق العمل، وأبرزها"خطط التطوير الفردي"التي يتم إعدادها وتنفيذها لجميع الموظفين القطريين في الهيئة بمختلف مستوياتهم. حيث تم حتى الآن تطوير 80 في المئة من هذه الخطط ومدّتها عامان(2014-2016)،قابلة للتجديد. والجدير بالذكر أنّ خطط التطوير الفردي الجديدة للعام القادم سوف تطور بالكامل الكترونياً. و تم هذا بالتعاون مع إدارة نظم المعلومات من أجل تسهيل التعاملات وتقليل المستندات الورقية المتداولة. برنامج تطوير المهارات القيادية على صعيد المهارات القيادية، أنهت"أشغال" العام الماضي المرحلةالأولى من برنامج تطوير المهارات القيادية الذي يهدف إلى دعم قيادات الهيئة في تسيير وتعزيز سبل التفاعل والتعامل وآلية العمل لتحقيق الأهداف المؤسسية والارتقاء بها لمستويات أعلى من التميّز. وقد شملت هذه المرحلة 22 من كبار قادة الهيئة ،حيث تم عقد ثلاث ورش تدريبية لتطوير المهارات المستهدفة بحسب إطارالكفاءات القيادية المعتمد في الهيئة بالتعاون بين قسم التدريب والتطوير في "أشغال"وأحد الاستشاريين العالميين في مجال تطوير المهارات القيادية. دورات التدريب الداخلية يتولّى قسم التدريب والتطوير في إدارة الموارد البشرية، بالتعاون مع إدارات الهيئة المختلفة، إعداد وتقديم دورات تدريبية داخلية يتجاوز عددها الـ50 دورة كل عام. وتغطي هذه الدورات المجالات الفنية والإدارية والحاسب الآلي واللغة الانجليزية، بما فيها العقود والمناقصات والاسعافات الاولية والأمن والسلامة في مواقع العمل، علماً أنّ الأخيريحتاج إلى تدريبات متخصّصة كالعمل في الأماكن الضيقة أو المرتفعة، وذلك إلى جانب الدورات التدريبية التي تعزز المهارات الابتكارية لدى فريق العمل. محاربة الفساد وجرائم المال العام تم عقد دورات لموظفي الهيئة تشمل أيضاً محاربة الفساد وجرائم المال العام، التي تنظم بالتعاون مع مركز حكم القانون ومكافحة الفساد. وتعزز مثل هذه الدورات الثقافة القانونية لدى فريق العمل إضافة إلى سبل التعاون والتنسيق مع سائر مؤسسات الدولة. ويقدّم هذا البرنامج مجموعة من المحاضرين والخبراء من الأمم المتحدة وكلية أحمد بن محمد العسكرية وكلية القانون في جامعة قطر والنيابة العامة القطرية، إضافة إلى مركز حكم القانون ومكافحة الفساد. وتتناول الدورة المهارات العملية المتعلقة بجرائم الاحتيال في تنفيذ العقود والفساد المالي والإداري، وأساليب الكشف والوقاية والردع، ومهارات كشف الفساد في المشتريات وموضوعات أخرى في الإطار نفسه. برنامج التحكم في الأمن والسلامة تم عقد دورة التحكّم في الأمن والسلامة ، نفذت على مدى أربعة أيام وتشمل تدريبات مكثفة هدفها تزويد الموظفين بالمعرفة حول اتخاذ الإجراءات العملية اللازمة لمعالجة مسائل الأمن والسلامة التي تواجههم في موقع العمل. وتكمن أهمية هذا التدريب في أنّه يعزز الوعي بأهمية الأمن والسلامة لكونهما من المهام الأساسية للمدراء. وقد حضر التدريب الأول في "أشغال" 12 من كبار الموظفين في إدارة تشغيل وصيانة شبكات الصرف الصحي. إدارة تنفيذ الإنشاءات تعتبر دورة تنفيذ الإنشاءات في مجال الطرق الرئيسية والطرق السريعة تدريباً متخصصاًمدّته خمسة أيام في إدارة عناصر الإنشاءات في هذا المجال. ويتناول التدريب الأساليب الحديثة في التخطيط الاستراتيجي ومراقبة التكاليف وعقود البناء وتقييم المناقصات وإدارة المخاطر ونُظُم الجودة ومؤشرات الأداء الرئيسيةوقياس الأداء، إضافة إلى العناصر الأساسية الأخرى لإدارة مشاريع الطرق الضخمة والطرق السريعة. تعزيز مهارات المدربين نظمت "أشغال" أيضاً ورش عمل هدفها تعزيز مهارات المدرّبين الداخليين، وهي تتناول مهارات التقديم والعرض وتعزيز مهارات محاضري التدريب وتحديد مسؤولياتهم. وقد أجريت دورات في ديسمبر 2014 لدفعات من المدرّبين المرشحين، علماً أنّ جميع المشاركين في هذه الورش يحصلون على شهادات تدريب. تعزيز الابتكار والتغيير صمّم برنامج تعزيز الابتكار والتغيير من قبل أحد معاهد التدريب الرائدة في العالم بهدف تعزيز وعي الهيئة بأهمية الابتكار والتغيير في نجاح أية مؤسسة أو هيئة. وقد عقد البرنامج دورته الأولى بحضور موظفي إدارة تشغيل وصيانة شبكات الصرف في شؤون الأصول. الإدارة المحترفة للمشاريع تتعاون "أشغال" مع جهات تدريبية متخصصة ومعتمدة من مؤسسة إدارة المشاريع (PMI) في تنظيم دورة الإدارة المحترفة للمشاريع التي تقام على مدى خمسة أيام وتعزّز مهارات مدراء المشاريع في ما يتعلّق بأهميّة الجدول الزمني وتحديد بداية ونهاية كل مرحلة من مراحل المشروع للتأكد من انتهائه في الوقت المحدد وأهمّية المراقبة والسيطرة على سير المشروع من لحظة تأسيسه حتى لحظة تسليمه. وقد خضع للدورة الأولى في الإدارة المحترفة للمشاريع 20 من كبار المهندسين والمهندسات والموظفين ذوي الاختصاص في مختلف إدارات الهيئة. إدارة المشاريع لغير المتخصّصين يقوم قسم التدريب والتطوير بتنظيم ورش عمل في "إدارة المشاريع لغير المتخصّصين"، وذلك بالاستعانة بمدرّبين معتمدين من داخل الهيئة. وهدف هذه الورش هو نشر ثقافة إدارة المشاريع بين كل موظفي الهيئة، وحتى أولئك غير المتخصّصين في مجال إدارة المشاريع بشكل رسمي. وتقام هذه الدورات بالتعاون مع إحدى أكبر مؤسسات التدريب العالمية، التي تقوم باعتماد مدرّبي الهيئة وكذلك شهادات المتدرّبين. دورة الهندسة القيميّة ومن أحدث البرامج التدريبية التي بدأت "أشغال" تطبيقها دورة "الهندسة القيميّة"، التي تعرّف بأنّها جهد جماعي منظم لتحليل وظائف المشروع ومطابقتها لأهداف ومتطلبات المالك والمستفيد، ومن ثم ابتكار بدائل تؤدي تلك الوظائف وتحقق الأهداف بأقل تكاليف ممكنة، ومن دون الإخلال بالجودة والوظائف الأساسية. وقد شارك في دورة متقدّمة عقدتها "أشغال" مؤخراً في هذا المجال 23 من كبار المهندسين والإداريين ذوي الاختصاص في الهيئة، حيث قدم التدريب جهة متخصصة في المجال و محاضر معتمد من المعهد الأميركي "سايف إنترناشونال". تخطيط العمل وإدارة الوقت دورة تخطيط وتنظيم العمل وإدارة الوقت تكسب المتدرّبين المهارات اللازمة لتنظيم أعمالهم اليوميّة والتخطيط لجدول أعمالهم التالي وتحديد أهدافهم وإدارة الوقت بشكل فعّال لكافة المسؤوليات المنوطة بهم ومتابعتها وتعزيز التفاعل والانتاجية في العمل. وفي إطار خطط التطوير الفردي، شارك 13 موظفاً من مختلف الإدارات والدرجات في الدورة التي أشرف عليها مدرّبون يحملون شهادات دكتوراة في الإدارة. مهارات التنسيق والتعامل مع مختلف الإدارات وبعد إجراء دراسة للاحتياجات التدريبية الفعلية لعدد من موظفي الإدارات المختلفة، نظمّت "أشغال" دورة على مهارات التنسيق والتعامل مع سائر الإدارات هدفها رفع كفاءة التنسيق بين مختلف إدارات الهيئة بما يساعد على تأدية المهام الوظيفية بفعّالية وخلق الانسجام الأفقي والعمودي بينها، وبالتالي تحسين مستوى عمل الإدارات وانجاز المهام بوقت أسرع ودقّة أعلى. وقدّمت الدورة مدرّبة متخصّصة في الإدارة وحضرها 18 موظفاً وموظفة قطريين من مختلف إدارات الهيئة ومن مستويات متعدّدة، وذلك في إطار خطة التطوير الفردي. إلى ذلك، تمّ مؤخراً تكريم الجهات المتعاونة مع جامعة قطر في مجال تطوير قدرات العاملين، فنالت "أشغال" الجائزة تقديراً لما تقوم به في هذا المجال، علماً أنّ الهيئة تواصل ارسال موظفيها إلى مركز التعليم المستمر بجامعة قطر على مدار العام للمشاركة في دورات خاصة بتنمية المهارات الإدارية والفردية. وقد تلقّى الجائزة بالنيابة عن أشغالالسيد محمد مبارك القحطاني، رئيس قسم التدريب والتطوير في الهيئة. هذا وتمثل برامج وخطط تطوير الكوادر في "أشغال" جزءاً من استراتيجية التطوير المؤسسي الكليّة والتي تعمل على كافة الأصعدة والمستويات في الهيئة وبشكل متزامن ومتناغم.
517
| 04 أغسطس 2015
بدأت هيئة الأشغال العامة في تنفيذ مشروع الإنارة لعدد من الشوارع الداخلية بالدائرة الثامنة وذلك بناء على الطلب الذي تقدمت به الأستاذة شيخة بنت يوسف الجفيري عضو المجلس البلدي المركزي. وأعلنت أشغال أنها ستقوم وفق هذه الخطة بإنارة جميع الشوارع المعطلة منذ فترة ونوهت أنها بدأت العمل في شارع الحسين بن علي والذي تمت إنارته بالكامل و كذلك شارع نيسان والشوارع المتفرعة منه وقد عبر عدد من أبناء الدائرة عن شكرهم وتقديرهم للأستاذة شيخة بنت يوسف الجفيري التي بذلت جهود كبيرة حتى تم انجاز هذا المشروع. من جانبه قدمت عضوة البلدي شكرها وتقديرها للمسؤولين في هيئة الأشغال العامة وخصت بذلك قسم الإنارة على استجابتهم السريعة لهذا الموضوع وقالت الجفيري في تصريح لــ"الشرق" أنها وضعت خطة عاجلة ستقوم بتقديمها إلى المجلس البلدي بهدف الانتهاء من بقية المشروعات القائمة حاليا بالدائرة لافتة إلى أنها ستقوم بتقديم مقترحات جديدة سيكون لها صدى طيب لدى جميع الأهالي.
346
| 30 يوليو 2015
علمت "الشرق" أن هيئة الأشغال العامة "أشغال" تعمل على إنشاء محطة تجريبية لمعالجة المياه الجوفية والسطحية ضمن الحلول السريعة التي تسعى إليها الهيئة لتقديمها لبعض مناطق الدولة التي تعاني من طفح المياه السطحية ما أثر على المنازل والبنية التحتية لدى هذه المناطق الجديدة بشكل خاص . ومن المنتظر إنشاء المحطة الجديدة في الموقع القائم لمحطة معالجة الصرف الصحي بجنوب الدوحة بداية العام القادم على 6 مراحل ليكون التشغيل النهائي للمحطة الجديدة خلال 5 سنوات لتكون هذه المرحلة خاصة بإعداد النواحي المختلفة لمسألة علاج المياه الجوفية والسطحية والتي باتت من المشاريع الضرورية التي ستقدم الحلول الأكيدة للمواطنين بشكل عام . ومن جهة أخرى يتضمن مشروع محطة المعالجة الجديدة بحيرة معالجة بطاقة 12.5 ميجا لتر مساحتها التقديرية 4.5 هكتار (40500 متر مربع) . بالإضافة إلى ذلك سيتضمن المشروع معالجة ابتدائية تقليدية بطاقة 5 ميجا لتر. وكذلك محطة التناضح العكسي بطاقة 5 ميجا لتر . مع قيام الشركة المنفذة للمشروع بتكبير وتعديل محطة الضخ الحالية القائمة لضخ المياه الجوفية السطحية المجمعة إلى بحيرة المعالجة ومنظومة المعالجة الابتدائية التقليدية المقترحة، ويشمل مشروع المحطة أيضا أعمال التخلص الآمن من كل المياه المتبقية بالمحطة. بالإضافة إلى إنشاء مبنى للزوار سيكون من ضمن مشروع المحطة الذي يحتوي على برامج متعددة للتوعية بالأمور المتعلقة بكيفية علاج المياه السطحية والجوفية وآثارها على الأراضي والمناطق بشكل عام، ليكون المركز منبراً للزوار يحتوي على كافة التفاصيل والمعلومات التي تتعلق بأهداف المشروع الذي يعتبر من الأمور المهمة التي تسعى هيئة الأشغال العامة لحلها وخاصة مع توسع المياه بشكل كبير في مناطق الدولة المختلفة . ويذكر أن الدولة قامت بالاستثمار في قطاع الزراعة لتحسين الأمن الغذائي. وتعتمد البلاد حالياً إستراتيجية استخدام المياه الجوفية في الزراعة، وبناء محطات تحلية المياه لتوفير مياه الشرب، بينما يقتصر استخدام مياه الصرف الصحي لمعالجة ري النباتات العلفية والحدائق العامة. وتتأثر المناطق الزراعية وتتوزع في الأجزاء الشمالية والوسطى من البلاد حيث يمكن الحصول على المياه الجوفية ذات الجودة الملائمة. وقد زاد استخراج المياه الجوفية من أحواض المياه الجوفية الشمالية والجنوبية بصورة مطردة من 4 ملايين متر مكعب في 1960 إلى حوالي 220 مليون متر مكعب في 2005. وأدى ذلك إلى تسجيل معدل استخراج مياه يعادل تقريبا 4 أضعاف معدل تغذية المياه الجوفية الطبيعية. وفي عام 2005 تم توزيع ما يقرب من 80% من إجمالي مياه الصرف الصحي المعالج على مزارع الرفاع والركية، من أجل زراعة العلف، ومناطق في الدوحة من أجل ري الحدائق العامة وأعمال التشجير، في حين تم تصريف المياه المتبقية في منطقة بحيرة أبو نخلة. وفي عام 2004 كانت شبكات المياه تغطي 97% من المساكن في العاصمة، و86% في الوكرة. و85% في الريان و60% في الغويرية، وبحلول 2004 تم توصيل 83% من المباني في الدولة بشبكة المياه، وارتفعت النسبة إلى 97% في الدوحة، ومع توسع الشبكة سيتم تغطية كل المدن، فقد تقلص عدد مستهلكي المياه الذين يتم تزويدهم بها عبر سيارات الصهاريج من 6% في 2004 إلى 4% في 2007.
763
| 30 يوليو 2015
أحرزت هيئة الأشغال العامة "أشغال" تقدماً ملحوظاً في تنفيذ أعمال مشروع طريق الوكرة الموازي، حيث يجري حالياً تنفيذ الأعمال الهيكلية والأسطح لسبعة جسور ضمن المشروع ومن ثم صب الطبقة الخرسانية ليتم بذلك الإنتهاء من الأعمال الرئيسية لهذه الجسور. 360 جسراً و 240 تقاطعاً بطول 1000 كم بجميع أنحاء الدولة تشمل الأعمال التي تم الإنتهاء منها في موقع العمل إنجاز 77% من أساسات الأعمدة و68%من الأعمدة، والتي يتم تنفيذها على قدم وساق لضمان الانتهاء من الأعمال وفقاً للجداول الزمنية المقررة لكل مرحلة.من الجدير بالذكر بأن إستكمال أعمال المشروع يجري في ساعات الليل بهدف تقليل الإزدحام المروري المحتمل خلال نقل الشاحنات لمواد البناء، إلى جانب نقل مواد البناء لموقع العمل دون توقف أو تعطّل،كما أن هيئة الأشغال العامة ومقاول المشروع تحرصان في المقام الأول على سلامة العمال من خلال تفادي عملهم خلال ساعات النهار ، وإنجاز العمل حسب جدول الأعمال المتفق عليه مع مقاول المشروع.الطرق السريعة مشروع طريق الوكرة الموازي هو أحد أبرز المشاريع التي تنفذها هيئة الأشغال العامة ضمن برنامج الطرق السريعة، ويضم هذا المشروع إنشاء طريق مزدوج جديد طوله حوالي 11 كلم يضم خمسة تقاطعات ذات مستويين أعمال صب الخرسانة وإرساء الجدران بمشروع الوكرة الموازيويقع المشروع غرب منطقة الوكرة، ويبدأ من طريق المشاف ليمتد عبر طريق مسيعيد، حيث سيشكل طريقاً موازياً رئيسياً لمدينة الوكرة. سيوفر هذا الطريق قدرة استيعابية إضافية لحركة المرور وعزيز الربط بين عدد من المواقع الحيوية والمدن في جنوب دولة قطر وتمكين قائدي المركبات من التنقل بين الدوحة ومسيعيد دون الحاجة للمرور بمنطقة الوكرة أو طريق الوكرة بالإضافة إلى الطريق سيعمل على تحسين المداخل لعدد من المواقع التي تضم مطار حدم الدولي الجديد وميناء الدوحة والطريق المداري السريع والشمال الغربي لقطر، والمحور الشرقي الغربي والمنطقة الصناعية في جنوب الدوحة، كما أنه سيخدم استاد الوكرة المخطط استخدامه خلال استضافة كأس العالم لكرة القدم 2022. وقد تم البدء بتنفيذ أعمال هذا المشروع في الربع الثاني من 2014، ومن المتوقع أن يكتمل في الربع الأول من 2018. استكمال الاعمال الرئيسية لـ7 جسور بطريق الوكرة الموازى يضم برنامج الطرق السريعة تنفيذ أكثر من 30 مشروعاً للطرق الرئيسية والسريعة موزعة على 46 عقداً، وبلغ إجمالي قيمة العقود الإنشائية التي تم توقيعها لهذه المشاريع حتى الآن أكثر من 40 مليار ريال قطري.ويهدف البرنامج إلى بناء شبكة تمتد لحوالي 1000 كيلومتراً من الطرق المتطورة والمستدامة تتضمن إنشاء حوالي 360 جسراً و 240 تقاطعاً رئيسياً تغطي مدينة الدوحة والمدن الرئيسية والمناطق الخارجية في جميع أنحاء الدولة. أعمال صب الأعمدة الخرسانيةكما تتضمن هذه المشاريع إنشاء وتطوير بنية تحتية متكاملة بهذه الطرق من شبكات للصرف وشبكات الكهرباء، وأنظمة النقل الذكية، وتحسين أنظمة الإنارة وأنظمة إشارات المرور. بالإضافة إلى تطوير شبكة مياه الشرب، وشبكة تصريف المياه السطحية. فضلاً عن الطرق الخدمية ومسارات المشاة والدراجات الهوائية والأعمال التجميلية. إنجاز 77% من أساسات الأعمدة و68%من الأعمدة بالطريق.. طرق خدمية ومسارات للمشاة والدراجات الهوائية وأعمال التجميليةوسوف تشكل هذه المشاريع الجديدة للطرق الرئيسية والسريعة شبكة متكاملة تخدم كافة مناطق الدولة، وسيظهر أثرها الإيجابي تدريجياً من حيث معالجة الاختناقات واستيعاب الحركة المرورية في جميع المناطق مع التقدم الذي يتم إحرازه في تنفيذ هذه المشاريع، ويبلغ عدد المشاريع التي يجري تنفيذها حالياً خمسة عشر مشروعاً، وباقي هذه المشاريع يجرى العمل حالياً على استكمال مراحل التصميم الخاصة بها والبعض الآخر سيدخل مرحلة طرح المناقصات والترسية قريباً. تركيب هياكل أحد أسطح الجسور لتكملة مشروع الوكرة الموازي
516
| 29 يوليو 2015
أعلنت هيئة ألاشغال العامة "أشغال" في إبريل الماضي أنه تم إيقاف عمليات ضخ مياه الصرف الصحي المعالجة بالكامل في بحيرة بونخلة ويجري تجفيفها تمهيداً لإغلاقها كلياً واستصلاح أرضها مستقبلاً، هذا وقد تم وقف عمليات ضخ مياه الصرف الصحي المعالجة والزائدة عن الحاجة من محطة المعالجة في جنوب الدوحة في بحيرة ابو نخلة منذ مارس 2014، ووصلت نسبة جفاف المستنقع إلى 85% في أبريل 2015، تمهيداً لتجفيفه بشكل كامل ريثما يتم توفير موقع بديل للتخزين الموسمي واستهلاك المياه المعالجة بواقع50,000 متر مكعب في اليوم.وأوضح السيد أحمد محمد شريف، مدير إدارة تشغيل وصيانة شبكات الصرف الصحي فى تصريحات صحفية سابقة أنه تم وضع الخطة والآلية اللازمة لإغلاق بحيرة بونخلة والاستفادة من المياه المعالجة المخزنة فيه، تضمنت التوسع في الرقعة الزراعية اللازمة لاستهلاك أكبر كمية من المياه المعالجة في أغراض الري الزراعي لقطعة الأرض التي تم تخصيصها من قبل التخطيط العمراني في منطقة أم غويلينة (ضمن المنطقة 82)، وقامت الهيئة بتوصيل شبكة المياه المعالجة إلى حدود قطعة الأرض في الربع الأول من عام 2014 ليتم ضخ 50 ألف متر مكعب في اليوم من المياه المعالجة حسب الاتفاق مع وزارة البيئة، وتم طرح مناقصة لزراعة الأرض من قبل وزارة الاقتصاد والتجارة، ومن المتوقع أن يبدأ الاستهلاك الفعلي للمياه المعالجة في يونيو عام 2016 حسب الجدول الزمني المعتمد لتنفيذ المشروع من قبل وزارة الاقتصاد والتجارة، كما يجري العمل على التوسع في المساحات الزراعية المروية بواسطة المياه المعالجة في موقع مزرعة الركية، كما يجري أيضاً العمل على تحديد قطعة أرض قرب مزرعة الركية لإنشاء بركة تخزين المياه المعالجة خلال حالات الطوارئ وانخفاض الطلب على المياه المعالجة.
842
| 28 يوليو 2015
طرحت هيئة الأشغال العامة (أشغال) مناقصة لإعادة تصميم وبناء المحجر الزراعي والبيطري ومنصات تفتيش الشاحنات بأبو سمرة على أن يتم البناء اعتباراً من سبتمبر المقبل وعقب إغلاق الباب أمام الشركات المتقدمة ووفقاً لمواصفات قطر للبناء. وحدّدت أشغال دخول المناقصة للشركات القطرية وذلك في إطار دعمها للشركات الوطنية فيما بلغ الحد الأدنى لدخول المناقصة مليون و200 ألف ريال. وتقع المشاريع في مركز جمارك أبو سمرة ونطاق الأعمال هو تصميم وإعادة بناء الأرصفة والمنصات والمناطق المعيبة ومباني التفتيش ومنطقة التخليص والمباني الزراعية والحجر الصحي بالمباني. وأكدت الهيئة ضرورة الحصول على كل المواد والبضائع من الشركات المصنعة المحلية.
1092
| 24 يوليو 2015
تعلن هيئة الأشغال العامة (أشغال) عن تنفيذ إغلاق وتحويل مروري مؤقت في شارع نجمة على جزئين، وذلك ابتداءً من يوم الإثنين 20 يوليو 2015 وحتى 11 من سبتمبر 2015، بهدف استكمال أعمال إعادة تأهيل شبكة الصرف الصحي في منطقة نجمة. ينقسم هذا التحويل والإغلاق المروري إلى جزئين، الأول يمتد من تقاطع شارع النجمة مع شارع بن شعيب (بالإضافة إلى كلاً من شارع سكة الإبريز وشارع مسلمة بن أحمد الداخلية المتفرعة من شارع بن شعيب) ويمتد الإغلاق حتى تقاطع شارع نجمة مع شارع حمزة بن مالك، حيث سيتم إغلاق الطريق في الاتجاهين لمسافة 113 متراً، ويمكن لقائدي المركبات القادمين من شارع المنصورة استخدام طريق حمزة بن مالك الثنائي الاتجاه للوصول إلى شارع نوفل بن الحارث وهو أيضاً ثنائي الاتجاه ومن ثم الوصول إلى بن شعيب الأحادي الاتجاه (كما هو موضح على الخريطة المرفقة). أما الجزء الثاني فيمتد من تقاطع شارع نجمة مع شارع حمزة بن مالك إلى تقاطع شارع النجمة مع شارع المنصورة لمسافة 110 أمتار، على أن يتم إغلاق مسار واحد والإبقاء على مسار مفتوح للحركة المرورية القادمة من شارع المنصورة، وكطريق بديل يمكن للحركة المرورية استخدام طريق حمزة بن مالك إلى شارع نوفل بن حارث، حيث يُتاح مسار لكل اتجاه. (كما هو موضح على الخريطة المرفقة). تهيب هيئة الأشغال العامة بمستخدمي الطريق الانتباه إلى اللوحات الإرشادية والالتزام بحدود السرعة المحددة لضمان السلامة على الطريق.
1145
| 15 يوليو 2015
تفتتح مؤسسة الرعاية الصحية الاولية مساء غداً الأحد المبنى الجديد لمركز الكرعانة الصحي. ومن المقرر أن يفتتح سعادة السيد عبدالله بن خالد القحطاني وزير الصحة العامة المركز الجديد الذي نفذته هيئة الأشغال العامة (أشغال) لصالح مؤسسة الرعاية الأولية وذلك بحضور الدكتورة مريم عبدالملك مدير عام المؤسسة وعدد من مسؤولي الرعاية الصحية الأولية. وذكرت المؤسسة أن المركز الجديد يشتمل على جميع الخدمات التي سوف تقدم فور تشغيله من عيادات طب الأسرة وعيادات التطعيم وعيادة الأمراض غير الانتقالية الى جانب عيادة رعاية الحوامل وعيادة الطفل السليم وعيادة طب الأسنان . كما ستتوفر في مركز الكرعانة خدمة المختبر والصيدلة والتصوير بالأشعة والقومسيون الطبي وغيرها من الخدمات. ويأتي هذا التوسع في إنشاء المراكز الصحية الجديدة لتلبية الطلب المتزايد على الخدمات الصحية بدولة قطر حيث تحتوي هذه المراكز على خدمات تفوق المعايير الطبية التي تركز على تمكين مجتمع صحي ومنتج من خلال تعزيز الرعاية الذاتية. وكانت مؤسسة الرعاية الاولية قد افتتحت قبل اسبوع المبنى الجديد لمركز لغويرية الصحي ليخدم سكان منطقة لغويرية والمناطق المجاورة.
1050
| 11 يوليو 2015
أعلنت هيئة الأشغال العامة "أشغال" أنه سيتم إغلاق ـ مؤقت ـ لمدخل ومخرج شارع روضة الدبدبة، وشارع الربيات، المتفرعين من شارع مسيمير بطول حوالي 350 م، وذلك لمدة شهرين ابتداءً من غد السبت، وستكون الأجزاء المتبقية من شارع روضة الدبدبة، وشارع الربيات مفتوحة في كلا الاتجاهين، طيلة فترة تنفيذ الأعمال ومتاحة لمرور المركبات. ويهدف الإغلاق المؤقت، إلى استكمال أعمال إنشاء الطريق الذي سيربط جسر الجزيرة، الذي هو حالياً قيد الإنشاء، بطريق أبو هامور القائم، وذلك كجزء من أعمال مشروع تطوير امتداد شارع المنتزه، التي تشمل تطوير المرافق بالموقع. وسيتعين على قائدي المركبات الراغبين في الوصول من شارع مسيمير إلى شارع روضة الدبدبة، وشارع الربيات، استخدام الشوارع المحلية المجاورة في المنطقة، وهي: شارع وادي الغديرات، وشارع الشحيمية وسعد بن ماجد.. وستقوم "أشغال" بوضع اللوحات المرورية والإرشادية اللازمة في موقع الإغلاق، لتنبيه قائدي المركبات خلال فترة العمل. وتهيب الهيئة، بمرتادي الطريق الالتزام بحدود السرعة المحدّدة، والتقيد بتعليمات المرور، والعلامات الإرشادية لضمان سلامتهم.
903
| 09 يوليو 2015
أعلنت هيئة الأشغال العامة "أشغال" عن أنه سيتم تحويل مروري على جزء من شارع الكسارات في المنطقة الصناعية من دوار 10 إلى دوار 2، وذلك اعتبارا من يوم الخميس المقبل ولمدة ستة أشهر ، مشيرة إلى أنه قد تمت توسعة الإتجاه الآخر من الطريق كي يصبح طريقا ذو إتجاهين .يذكر أن هذا الإغلاق يأتي كجزء من أعمال مشروع تطوير المنطقة الصناعية الذي يهدف إلى إستيعاب الأعداد المتزايدة من المركبات ودعم انسيابية الحركة المرورية في المنطقة وتوفير بنية تحتية متكاملة فيها . وسيتم وضع جميع اللوحات الإرشادية الواضحة لتوجيه المركبات.وأعربت " أشغال " عن اعتذارها لأي إزعاج لمستخدمي الطريق ، وأهابت بمرتادي الطريق الالتزام بحدود السرعة المحدّدة على امتداد التحويل المروري والتقيد بتعليمات المرور والعلامات الإرشادية لضمان السلامة على الطريق.
165
| 07 يوليو 2015
وقع سعادة المهندس ناصر بن علي المولوي رئيس هيئة الأشغال العامة "أشغال"، والسيد المهندس عبدالعزيز بن عبدالله الأنصاري، رئيس مجلس ادارة شركة قطر للمواد الأولية، إتفاقية تعاون مشترك بين الجهتين في مجال توريد المواد الأولية "الجابرو والحجر الجيري".حضر توقيع الإتفاقية السيد حمد علي المناعي نائب رئيس مجلس ادارة شركة قطر للمواد الأولية، رئيس لجنة مراقبة مخزون وأسعار المواد الأولية في وزارة الاقتصاد والتجارة، والسيد المهندس عيسى الحمادي الرئيس التنفيذي لشركة قطر للمواد الأولية، والسيدالمهندس محمد علي درويش مدير شؤون الدعم الفني بهيئة الأشغال العامة، والسيد عبدالصمد المكي مدير إدارة الأعمال الهندسية بهيئة الأشغال العامة. تهدف الاتفاقية إلى توفير المواد الأولية من الحجر الجيري وأحجار الجابرو، من قبل شركة قطر للمواد الأولية، لصالح هيئة الأشغال العامة، لإنجاز برامجها ومشاريعها التنموية في قطر، من خلال شركات المقاولات، إذ تضمن الشركة ثبات أسعار المواد الأولية في السوق المحلي، وتوفير كافة الكميات بما يكفي الأعوام الأولى من العقد، وهو ما سوف يحقق نجاحاً في تأمين استقرار الأسعار.أهداف التنميةوقد أعرب سعادة المهندس ناصر بن علي المولوي، رئيس هيئة الأشغال العامة "أشغال"، عن سعادته بإبرام اتفاقية التعاون بين "أشغال" وشركة قطر للمواد الأولية، معتبراً الأمر نجاحاً مشتركاً في تعاون كبريات الشركات والجهات القطرية، من أجل تحقيق أهداف التنمية وتنفيذ مشاريع البنية التحتية. وأضاف: إن "أشغال" ستحصل من شركة قطر للمواد الأولية على 41 مليون طن من الحجر الجيري و51 مليون طن من أحجار الجابرو، على مدار خمسة أعوام، وهو ما يوفر الاستدامة في إمدادات المواد الأولية التي تحتاجها مشاريع "أشغال".. من جانبه قال المهندس عبدالعزيز الأنصاري، رئيس مجلس ادارة شركة قطر للمواد الأولية، إن "الاتفاقية تؤكد أن قطر للمواد الأولية، أصبحت لاعباً رئيسياً ورقماً مهمّاً بين شركات مواد البناء في قطر والمنطقة، وأنه يمكن الاعتماد عليها في توفير المواد الأولية، من أحجار الجابرو والحجر الجيري والرمل الناعم والرمل المغسول، وبالكميات المطلوبة، لتنفيذ كبرى المشاريع في دولة قطر، وهو ما يتسق مع رؤية الشركة التي تقوم على التحول من الاقتصار على تكوين مخزون استراتيجي لمشاريع البنية التحتية في قطر من المواد الأولية، إلى دعم تحقيق رؤية قطر الوطنية 2030، وتشجيع كل العاملين في هذا المجال سواء القطاع الحكومي أو الخاص أو قطاع الأعمال، لكي تقوم بتشييد مشاريع الدولة المختلفة، والنهوض بالاقتصاد الوطني".وتابع رئيس مجلس إدارة شركة قطر للمواد الأولية قائلاً: إن "توقيع الاتفاقية مع هيئة الأشغال العامة "أشغال" يهدف إلى توفير مواد البناء اللازمة لمشاريع الهيئة، التي تعد شريكاً استراتيجياً لشركة قطر للمواد الأولية، لافتاً إلى أن تعاونهما من شأنه أن يساعد على إنجاز مشاريع الهيئة وتوفير المواد المطلوبة للمقاولين المتعاقدين من الهيئة، لمشاريعها المختلفة في الإنشاءات والبناء.النهضة العمرانيةإلى ذلك قال المهندس عيسى الحمادي، الرئيس التنفيذي لشركة قطر للمواد الأولية، في كلمته: "تسعى شركة قطر للمواد الأولية منذ تأسيسها في عام 2006 إلى ضمان توفير المواد الأولية في السوق القطري، لمواكبة النهضة العمرانية المتصاعدة التي تشهدها البلاد، لاسيما مع فوز قطر باستضافة كأس العالم 2022، بما يتطلبه ذلك من إقامة مشاريع عديدة في مختلف المجالات". وأضاف المهندس الحمادي: إن هذه الاتفاقية تعزز موقع شركة قطر للمواد الأولية، كمورد رئيسي للمواد الأولية في قطر، إذ تمتلك وتشغّل احتياطيات استراتيجية من المواد الأولية، كما توفر حلولاً متكاملة في مجالات عدة، منها: إدارة الموانئ، والعمليات اللوجستية والإمداد، والتخزين وتوزيع المواد الأولية الرئيسية، لتلبية الاحتياجات القطرية في مجالي البنية التحتية والإنشاءات.الرئيس التنفيذي لشركة قطر للمواد الأولية، أكد أن الاتفاقية الموقعة مع هيئة الأشغال العامة "أشغال" تستمر لمدة 5 أعوام، وتهدف إلى تشجيع الهيئة وممثليها من المقاولين المتعاقدين معها، والموردين، للعمل مع بعضهم بشفافية وانفتاح وبتعاون وبروح ثقة متبادلة، لتحقيق الأهداف المنشودة.. وذكر أن شركة قطر للمواد الأولية تلتزم بموجب الاتفاقية، بتقديم الإمدادات وفقاً للمواصفات والكميات المطلوبة.. وقال الحمادي: تعد شركة قطر للمواد الأولية الذراع الأساسي في توريد المواد الأولية، لجميع مشاريع البنية التحتية في الدولة، مشيراً إلى أن رؤية الشركة تشمل توفير أكبر قدر من الشفافية والموثوقية لتعاملاتها مع الموردين والعملاء، لتلبية متطلباتهم المتعلقة بمراقبة وفحص الجودة والحفاظ على السلامة البيئية، وتذليل كافة العقبات التي تواجه العملية التنظيمية والتشغيلية في الموانئ".. الجدير بالذكر أن شركة قطر للمواد الأولية تدير أحد أضخم مصانع الرمل المغسول، وتقوم ببناء صومعة للإسمنت بجوار أرصفة الجابرو في منطقة مسيعيد، لتخزين وتفريغ أكثر من 2 مليون طن من الإسمنت المستورد سنوياً، لتلبية أي زيادة في الطلب. كما تدير الشركة وتشغل ميناء الجابرو في مسيعيد، ويتوقع أن يصل حجم تفريغ ومناولة البضائع الى 34 مليون طن بحلول عام 2016، بالإضافة الى رصيف بحري، ومخزون آخر في رأس لفان لاستيراد 7.5 مليون طن من الجابرو سنوياً. وتقوم الشركة بتطوير مخزونها عبر المحاجر خارج الدولة، في كلّ من خطمة ملاحة في سلطنة عمان، ورأس الخيمة، والفجيرة، في الإمارات العربية المتحدة. كما توفر شركة قطر للمواد الأولية حلولاً متكاملة، لنقل وتخزين وتسليم المواد الأولية الرئيسية في قطر.
988
| 06 يوليو 2015
أعلنت هيئة الأشغال العامة "أشغال" أنه سيتم إغلاق مؤقت لمسار واحد فقط، في كل اتجاه، على جزء من شارع نجمة بطول حوالي 700 متر، اعتباراً من اليوم الثلاثاء ولمدة أربعة أشهر. وستقوم "أشغال" بتنفيذ الأعمال دون إغلاق الحركة المرورية بالطريق، وذلك بالإبقاء على المسارين الآخرين مفتوحين في كل اتجاه لمرور المركبات، كما سيتم اعتماد تدابير وقائية إضافية، لرفع مستوى السلامة المرورية على طريق الحضارة، وطريق الثمامة خلال فترة العمل. وتأتي هذه التحويلة المرورية في إطار الأعمال التنفيذية لتقاطع شارع الحضارة مع شارع نجمة، حيث سيتم تنفيذ تقاطع بإشارات ضوئية من شأنها تعزيز تدفق حركة المرور في المنطقة. وذلك كجزء من أعمال مشروع تطوير الطريق الدائري الخامس، وشارع نجمة، التي تشمل تطوير المرافق بالموقع كأعمال البنية التحتية، وأعمال التجميل، وإنارة الشوارع، وممرات المشاة ومسارات الدراجات. ومن جهة أخرى أكدت الهيئة، أنه سيتم وضع اللوحات المرورية والإرشادية اللازمة، في كافة مواقع المشاريع، ودعت مستخدمي الطريق إلى التقيد باللوائح، والأنظمة المرورية، للحفاظ على سلامتهم وسلامة الآخرين.
778
| 06 يوليو 2015
وقعت هيئة الأشغال العامة " أشغال" وشركة قطر للمواد الأولية ،اتفاقية تعاون مشترك بين الجهتين في مجال توريد المواد الأولية (الجابرو والحجر الجيري).وقع الاتفاقية المهندس ناصر المولوي رئيس هيئة الأشغال العامة والمهندس عبدالعزيز بن عبدالله الأنصاري ، رئيس مجلس ادارة شركة قطر للمواد الأولية بحضور السيد حمد علي المناعي نائب رئيس مجلس ادارة الشركة ورئيس لجنة مراقبة مخزون وأسعار المواد الأولية في وزارة الاقتصاد والتجارة والمهندس عيسى الحمادي الرئيس التنفيذي لشركة قطر للمواد الأولية والمهندس محمد علي درويش مدير شؤون الدعم الفني بالهيئة وعدد من المسؤولين بالهيئة.تهدف الاتفاقية إلى توفير المواد الأولية من الحجر الجيري وأحجار الجابرو، من قبل شركة قطر للمواد الأولية، لصالح هيئة الأشغال العامة، لإنجاز برامجها ومشاريعها التنموية في قطر من خلال شركات المقاولات، بحيث تضمن الشركة ثبات أسعار المواد الأولية في السوق المحلية وتوفير كافة الكميات بما يكفي الأعوام الأولى من العقد ، وهو ما سيحقق نجاحا في تأمين استقرار الأسعار.وأعرب المهندس المولوي عن سعادته بإبرام اتفاقية التعاون بين "أشغال" وشركة قطر للمواد الأولية، معتبرا ذلك نجاحا مشتركا في تعاون كبريات الشركات والجهات القطرية، من أجل تحقيق أهداف التنمية وتنفيذ مشاريع البنية التحتية.وأضاف المولوي في بيان للهيئة أن "أشغال" ستحصل من شركة قطر للمواد الأولية على 41 مليون طن من الحجر الجيري و51 مليون طن من أحجار الجابرو على مدار خمسة أعوام، وهو ما يوفر الاستدامة في إمدادات المواد الأولية التي تحتاجها مشاريع "أشغال".من جانبه قال المهندس الأنصاري إن الاتفاقية تؤكد أن قطر للمواد الأولية أصبحت لاعبا رئيسيا ورقما مهما بين شركات مواد البناء في قطر والمنطقة، وأنه يمكن الاعتماد عليها في توفير المواد الأولية من أحجار الجابرو والحجر الجيري والرمل الناعم والرمل المغسول، وبالكميات المطلوبة، لتنفيذ كبرى المشاريع في دولة قطر، وهو ما يتسق مع رؤية الشركة التي تقوم على التحول من الاقتصار على تكوين مخزون استراتيجي لمشاريع البنية التحتية في قطر من المواد الأولية، إلى دعم تحقيق رؤية قطر الوطنية 2030 وتشجيع كل العاملين في هذا المجال سواء القطاع الحكومي أو الخاص أو قطاع الأعمال، كي تقوم بتشييد مشاريع الدولة المختلفة والنهوض بالاقتصاد الوطني.وتابع رئيس مجلس إدارة شركة قطر للمواد الأولية قائلاً إن توقيع الاتفاقية مع هيئة الأشغال العامة يهدف إلى توفير مواد البناء اللازمة لمشاريع الهيئة التي تعد شريكا استراتيجيا للشركة، لافتا إلى أن تعاونهما من شأنه أن يساعد على انجاز مشاريع الهيئة وتوفير المواد المطلوبة للمقاولين المتعاقدين من الهيئة، لمشاريعها المختلفة في الانشاءات والبناء.
317
| 06 يوليو 2015
أنهت الشركة المنفذة لمشروع تحويل الدوار المقابل لمحطة بترول وقود في الهلال إلى تقاطع بإشارات ضوئية، كما قامت بإضافة مسار ثالث جديد في كل اتجاه، بشارع نجمة في المسافة من تقاطع المنصورة إلى تقاطع النعيجة، وذلك بعد الانتهاء كليًا من أعمال توسعة الشارع، وتم افتتاحه رسميا أمس من تقاطع نعيجة وحتى تقاطع المنصورة . وقامت الشركة المنفذة للمشروع بإغلاق الطريق والبدء في أعمالها، في يوم الثلاثاء التاسع من شهر يونيو الماضي، بعد أن أعلنت هيئة الأشغال العامة "أشغال"، عبر موقعها على شبكة الإنترنت عن إغلاق الطريق، والبدء بالعمل فيه قبلها بثلاثة أيام، لتعريف الجمهور بمستجدات أعمالها في مختلف المناطق والمدن، موضحة أنه إغلاق مؤقت، كما وضعت خريطة توضح فيها طرقا محلية تعمل كطرق بديلة، يمكن لقائدي المركبة استخدامها. وتعمل هيئة الأشغال العامة على توسعة الطرق والشوارع الرئيسية الواقعة بوسط الدوحة، علاوة على وضع خطة محكمة لتحويل جميع الدوارات، الواقعة وسط الأماكن الحيوية إلى إشارات ضوئية، وهذا بهدف خلق نوع من السيولة المرورية وسط العاصمة، التي أصبحت تعج بالسيارات الخاصة والحافلات والشاحنات، والتي تضاعفت أعدادها بشكل كبير، بسبب الزيادة الكبيرة في تعداد السكان. وستعمل توسعة الطرق الواقعة خلف الإشارات المرورية، على تيسير حركة المرور بالنسبة لقائدي المركبات، علاوةً على أنها ستستوعب أعدادا كبرى من السيارات، التي كانت سابقًا تتكدس خلف بعضها البعض في الطرق على شكل طوابير طويلة، كما أنها ستعمل على تقليل الازدحامات المرورية، التي تتعرض لها الطرق الداخلية، نتيجة لجوء المركبات المختلفة إليها، للهروب من الزحام الموجود على الشوارع والطرق الرئيسية، كما أن توسعة الطرق والشوارع الرئيسية، سيعطي مجالا أكبر لسيارات الإسعاف والمطافئ والشرطة، للتحرك بشكل أسرع وأسهل بين السيارات. أما الإشارات الضوئية المرورية، فستعمل إلى حد كبير جدًا على تقليل الحوادث التي كانت تقع على الدوارات نتيجة السرعة المبالغ فيها من قبل البعض أثناء دخولهم الدوار، كما أنها ستقلل المخالفات المرورية التي يقوم بها البعض عند الدوارات، فضلا عن أنها ستقسم الوقت بعدالة بين السيارات في المسارات المختلفة، بحيث أن توقيت الإشارة الضوئية سيُقسم بين جميع الاتجاهات الموجودة بالتساوي، دون أن يكون هناك اتجاه يتميز عن الاتجاه الآخر، عكس ما هو موجود على الدوارات حيث أسبقية المرور تحدد باتجاه واحد (الأولوية للقادم من اليسار) .
1416
| 06 يوليو 2015
تعلن هيئة الأشغال العامة "أشغال" بأنه سيتم تحويل الحركة المرورية على طريق الريان في الإتجاه القادم من دوار الأولمبي "دوار الرياضة" إلى تقاطع 22 فبراير وبالتحديد في منطقة تقاطع طريق جاسم بن حمد مع طريق الريان، إلى طريق موازي جديد بثلاثة مسارات (كما هو موضح في الخريطة المرفقة). وذلك ابتداءً من غداً الخميس الموافق 2 يوليو الجاري ولمدة 18 أشهر. يبلغ الطول الإجمالي للتحويلة المرورية حوالي 800 متر، وهي عبارة عن طريق بثلاثة مسارات يتطابق مع الطريق الرئيسي في كافة المواصفات مما لن يؤثر على مستخدمي الطريق بأي شكل. وسيتم تنفيذ هذا التحويل المؤقت كجزء من مشروع تطوير طريق الريان الذي سيتضمن بناء نفق تحت طريق الريان مما سيتيح لقائدي المركبات القادمة من طريق الريان باتجاه الشرق من دخول طريق جاسم بن حمد عن طريق النفق دون الحاجة للوصول إلى تقاطع دوار الرياضة و المركبات القادمة من شارع جاسم بن حمد من الوصول لدوار الرياضة بدون الحاجة للمرور عبر تقاطع 22 فبراير. وستقوم "أشغال" بوضع اللوحات المرورية والإرشادية اللازمة في كافة مواقع المشروع لتنبيه قائدي المركبات خلال فترة العمل. وتهيب الهيئة بمرتادي الطريق الالتزام بحدود السرعة المحددة، والتقيد بتعليمات المرور والعلامات الإرشادية لضمان سلامتهم. ومن جانب آخر أعلنت هيئة الأشغال العامة "أشغال" عن أنه سيتم إغلاق حديقة البساط الأخضر المجاورة لطريق الريّان ابتداء من غد الجمعة الموافق 3 الجاري وذلك من أجل استكمال أعمال التطوير لهذه المنطقة كجزء من أعمال تنفيذ مشروع تطوير طريق الريان - المرحلة الثانية، الذي يتضمن أعمال تطوير البنية التحتية بما في ذلك تطوير وتحديث طريق الريان، وسوف يتخلّل هذا الإغلاق كذلك أعمال تطوير للحديقة نفسها. وكان قد تمّ إغلاق جزء من الحديقة في 30 ديسمبر 2014 لتنفيذ المرحلة الأولى من أعمال تطويرها، والتي تنفذها "أشغال" بالتعاون مع وزارة البلدية والتخطيط العمراني، بحيث يتمّ الانتهاء من أعمال تطوير الحديقة في الربع الأخير من العام 2015. هذا وستشمل أعمال التطوير في حديقة البساط الأخضر (المعروفة أيضاً بحديقة الريّان) تجديد كافة مرافقها، بما في ذلك سور الحديقة وممرّات المشاة ونظام الإنارة، كما سيتمّ تزويد الحديقة بمسارات جديدة للجري كي يتسنّى لمرتاديها ممارسة المشي أو الجري كما يشاؤون.
745
| 01 يوليو 2015
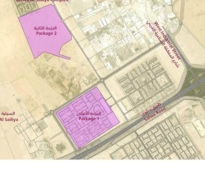
أعلنت هيئة الأشغال العامة "أشغال" البدء بتنفيذ أعمال مشروع تطوير الطرق والبنية التحتية في منطقة السيلية شمال طريق سلوى. ويغطي المشروع 1,460,000متراً مربعاً ، ويضم حزمتين الأولى تقع شمال طريق سلوى عند الطريق المؤدي الى مجمع بروة السيلية والذي يقع غرب تقاطع طريق الصناعية الجديدة ، وهي منطقة مبنية ولكنها تفتقر إلى البنية التحتية الجيدة أما الحزمة الثانية فتقع شمال الحزمة الأولى وهيعبارة عن أرض فضاء وتقسيم جديد تم تخصيصها للمنشآت السكنية العائلية، وقد بدأ بالفعل إنشاء بعض المباني السكنية والمرافق في أجزاء من هذه المنطقة. يهدف المشروع إلى تطوير الطرق والبنية التحتية لهذه المنطقة التي تعاني من افتقارها لشبكات تصريف مياه الأمطار وشبكات الصرف الصحي مما ينتج عنه مشكلة طفح المياه السطحية في المنطقة، إضافة إلى ذلك يهدف المشروع إلى إنشاء وتحسين الطرق الداخلية وتوفير ممرات للمشاة وراكبي الدراجات. وسيتم من خلال المشروع تنفيذ تحسينات واسعة على شبكة الطرق في المنطقة والتي سيتم تصميمها وإنشائها كجزء من المشروع،وتركيب أنظمة وأعمدة إنارة الشوارع والطرق وإنشاء الأرصفة ومواقف المركبات ومسارات المشاة والدراجات الهوائية وتركيب اللوحات الإرشادية، بالإضافة إلى أعمال البنية التحتية التي تشمل توفير بنية تحتية لجمع المياه السطحية والجوفية ونقلها والتخلص منها وتمديد أنابيب صرف جديدة وربطها بمنطقة واسعة من شبكة الصرف الصحي ،وإنشاء نظام جديد لتوزيع تدفق مياه الصرف الصحي المعالجة. سيستفيد من الأعمال التطويرية لهذا المشروع وشبكة الطرق والبنية التحتية الجديدة حوالي720 وحدة سكنية، كما سيعمل المشروع على تحسين مستوى السلامة في الطرق والشوارع الداخلية المحيطة بتلك المنشآت السكنية بالإضافة إلى عدد من المدارس التي تقع ضمن نطاق المشروع والمساجد الحالية والتي من المخطط تنفيذها مستقبلاً في هذه المنطقة وتمكين سكان ورواد المنطقة من الوصول إليها بسهولة. مشروع تطوير الطرق والبنية التحتية في السيلية شمال طريق سلوى هو أحد مشاريع برنامج الطرق المحلية والصرف الذي تنفذه الهيئة والذي يضم عدداً من المشاريع التطويرية الموزعة في كافة أرجاء ومناطق البلاد، وتبلغ التكلفة الإجمالية للمشروع حوالي 573 مليون و482 ألف ريال قطري، وقد تم إحالة المشروع للتنفيذ إلى شركة البناء القطرية ومن المتوقع أن يكتمل في الربع الرابع من عام 2017.
667
| 01 يوليو 2015
قامت تحقيقات "الشرق" بجولة ميدانية حول المشاريع الإنشائية للجسور التي يتم تشييدها حالياً لمشروع المحور الشرقي الغربي ضمن مشاريع الطرق السريعة التي تنفذها "أشغال"، حيث تضمنت الأعمال المنفذة امتداد عدد من الجسور التي تعتبر من ضمن مراحل المشروع الذي يعبر من خلال منطقة "بروة". وقد أنهت الشركة المنفذة للمشروع كافة أعمال الأساسات للجسور الرئيسية التي برزت وأصبحت في مراحلها النهائية تمهيداً للانتهاء من الأعمال الإنشائية للموقع الذي يتضمن مراحل متعددة. جسور الريل جسور بروة وصلت إلى مراحل متقدمة ومن جانب آخر تتضمن أعمال المشروع لدى منطقة بروة طريقاً سيربط طريقي الدائري السادس الجديد بمدينة بروة وآخر سيربط باتجاه مدينة الوكرة، وسيعمل هذا الطريق على فتح مسارات جديدة أمام المركبات القادمة من الوكرة وبروة وطريق المطار الدولي للوصول لمنطقة الثمامة التي تربط طرقاً أخرى مؤدية لمناطق أخرى. طريق الدوحة السريع المحور الشرقي الغربي وتعمل الشركة المنفذة للطريق الجديد على الانتهاء من أعمال البنية التحتية والتي شارفت على الانتهاء، خاصة أن مشاريع "الريل" لدى الجانب الآخر من طريق الوكرة المحاذي لمدينة بروة، قد بدأت بتنفيذ أعمال وضع أساسات الجسور التي وصلت لمراحل متقدمة لمشروع القطار الذي يمر عبر هذا الطريق ضمن إحدى مراحل التنفيذ للمشروع. ويهدف المشروع إلى توفير طرق إستراتيجية وربط الطريق المداري السريع بمطار حمد الدولي الجديد، واستحداث طريق مزدوج بخمسة مسارات في كل اتجاه على امتداد 22 كيلو متراً، من غرب مدينة بروة وحتى شارع المطار جنوب دوار سلاح الجو. حيث يشتمل المشروع على إنشاء 8 تقاطعات متعددة المستويات توفر وصلات جديدة لعدة طرق رئيسية ومناطق سكنية تشمل شارع المطار وامتداد شارع نجمة وطريق بروة وطريق الوكرة الموازي. تقاطعات محورية وتتألف التقاطعات التي يتضمنها المشروع من تقاطع المحور الشرقي الغربي الذي يربط شارع الصناعية الغربي وهو تقاطع بمستويين بحيث يكون شرق طريق الصناعية على المستوى الأرضي وشارع الصناعية الغربي كجسر علوي يربط المنطقة الصناعية الجديدة، وتقاطع المحور الشرقي الغربي، مع شارع الصناعية الشرقي، وهو تقاطع بمستويين حيث يكون طريق الصناعية الشرقي على المستوى الأرضي وشارع الصناعية الشرقي كجسر علوي وهو ما من شأنه أن يوفر نقطة اتصال بين المنطقة الصناعية ومشروع الطريق المداري السريع وطريق الشاحنات من خلال الربط مع ميناء الدوحة الجديد. طريق الدوحة السريع المحور الشرقي الغربي أما التقاطع الثالث فهو تقاطع المحور الشرقي الغربي، امتداد شارع العزيزية، وسيكون بمستويين بحيث يكون طريق الصناعية الشرقي على المستوى الأرضي وامتداد شارع العزيزية كجسر علوي، والرابع تقاطع المحور الشرقي الغربي، مع مدينة بروة، بمستويين بحيث يكون طريق الصناعية الشرقي على المستوى الأرضي والطريق المؤدي إلى مدينة بروة كجسر علوي للاتجاه نحو مناطق الجنوب، والخامس تقاطع المحور الشرقي الغربي، ويهدف لربط طريق الوكرة الموازي بشارع 22 فبراير. وسيتكون هذا الجزء من تقاطع بأربعة مسارات في كل اتجاه حيث يكون طريق المحور الشرقي الغربي الرئيسي على المستوى الأرضي، أمّا طريق الوكرة الموازي فسيكون جسراً علوياً، وسيدعم هذا التقاطع الحركة المرورية من خلال جسور علوية على مستويين تتيح الدوران إلى اليسار من المحور الشرقي الغربي إلى طريق الوكرة الموازي أو عكس ذلك. طريق الدوحة السريع المسار الشرقي أما التقاطع السادس فهو المحور الشرقي الغربي، مع امتداد شارع نجمة، وسيكون عبارة عن جسر بتقاطع على مستويين حيث يكون طريق الصناعية الشرقي على المستوى الأرضي وامتداد شارع النجمة كجسر علوي.. والتقاطع السابع هو المحور الشرقي الغربي، شارع الصناعية الجديدة، وسيكون بمستويين أيضاً، بحيث يكون شرق طريق الصناعية على المستوى الأرضي والمنطقة الصناعية الجديدة كجسر علوي يربط المنطقة الصناعية الجديدة بمشروع القرية اللوجستية المزمع إنشاؤها. وبخصوص التقاطع الثامن، فهو تقاطع المحور الشرقي الغربي مع شارع المطار، بمستويين حيث يكون طريق الصناعية الشرقي على المستوى الأرضي وشارع المطار كجسر علوي يربط منطقة الوكرة بوسط المدينة ويوفر نقطة اتصال بين المنطقتين. تطوير البنية التحتية الانتهاء من وضع الجسور لمشروع الريل على طريق الوكرة كما سيتم من خلال المشروع أيضاً تطوير البنية التحتية للخدمات في المنطقة بما يشمل تطوير وتحويل مسار تمديدات الخدمات وأنظمة النقل الذكية في الطرق وتحديث شبكات تصريف مياه الأمطار، بحيث سيعمل المشروع على تمديد 2842 متراً من أنابيب وخطوط الصرف وأكثر من 140 ألف متر من خطوط الري في كافة أرجاء المشروع، مع إمكانية إنشاء ممر طويل للسكك الحديدية مستقبلاً. كما سيتم استحداث مسارات جديدة ومطورة للمشاة وراكبي الدراجات الهوائية وتركيب أكثر من 6000 عمود إنارة في كافة أرجاء مشروع المحور الشرقي الغربي. وكما سيتم من خلال المشروع تشجير أكثر من 500 ألف متر مربع بما يشمل زراعة أكثر من 3000 شجرة و128 ألف شجيرة، وما يقدر بـ 140 ألف متر مربع من المساحات المغطاة بالعشب.
1530
| 29 يونيو 2015
علمت "بوابة الشرق" أن هيئة الأشغال العامة "أشغال" أنجزت كافة مراحل البناء والتمديدات في مبنى غرف العمليات الجديد والتابع لمؤسسة حمد الطبية، وسيتم تسليم المشروع كاملاً إلى مستشفى حمد العام نهاية الشهر القادم، لتقرر المؤسسة بعده موعد إفتتاح هذا المشروع العملاق. صعوبة الوصول إلى أقسام الطوارئ.. لاتزال قائمةوبحسب المعلومات التي حصلت عليها بوابة الشرق فان أشغال سوف تسلم مبنى مواقف السيارات لمؤسسة حمد الطبية نهاية شهر نوفمبر القادم، وسيتم افتتاح المواقف الجديدة بداية شهر ديسمبر القادم.ومازال كافة المرضى والمراجعين لمستشفى حمد العام والعيادات الخارجية يعانون من الإختناقات المرورية اليومية التي تواجههم منذ دخولهم إلى المستشفى وحتى بعد الخروج منه، ويزداد الزحام كلما اتجهت السيارات نحو المواقف، حيث صعوبة الحركة المرورية، فضلاً عن تكدس السيارات وتجمعها خلف بعضها حتى تمتد لمسافات طويلة تصل إلى الشوارع الرئيسية المحيطة بحمد العام وتتجاوز ذلك بعض المرات. الأعمال الإنشائية بمواقف السيارات ويقضي كافة المرضى والمراجعين فترات طويلة للخروج من الزحام اليومي الذي يواجههم في مستشفى حمد العام والعيادات الخارجية، وكذلك يقضون أوقاتاً في عملية البحث عن مواقف للسيارات حتى يتسنى لهم الوصول إلى مواعيدهم التي ربما يتم تأجيلها بسبب التأخر في البحث عن مواقف للسيارات أو قضاء الوقت وسط الزحام الشديد على الشوارع الداخلية باتجاه مستشفى حمد أو العيادات الخارجية التابعة له. الزحام.. سيتلاشى أو يخف بعد إفتتاح مبنى المواقفورغم وجود مبان مخصصة لتكون مواقف سيارات فى حمد العام والعيادات الملحقة، إلا أن تلك المواقف لم يتم افتتاحها حتى الآن، ومن المتوقع ان تخف نسبة الزحام المروري بعد افتتاح تلك المباني التي ينتظرها كافة المرضى والمراجعين الذين يترددون على حمد العام سواء كانوا مرضى او زوارا للعيادات الخارجية او غرف المرضى. إختناقات مرورية يومية أمام مستشفى حمدويرى البعض أن موعد إنطلاق المشاريع التطويرية على الشوارع الداخلية باتجاه طوارئ حمد العام سبب رئيسي في الزحام المروري، حيث وقوف السيارات بشكل عشوائي على الأرصفة، وكذلك صعوبة الوصول إلى قسم الطوارئ بسبب التحويلات والزحام المروري ايضا، بالاضافة إلى اغلاق الدوار وتحويله إلى مكان آخر حيث انشئ دوار بديل باتجاه العيادات الخارجية وقسم الطوارئ الذي يستقبل يوميا عددا كبيرا من الحالات.
781
| 29 يونيو 2015
أنجزت هيئة الأشغال العامة "أشغال" مشروع المبنى الجديد لمركز الاستشارات العائليّة في منطقة العقلة، بتكلفة 14 ,76 مليون ريال ويقدم المركز خدمات مجّانية متنوّعة تتعلق بالاسرة وكان تنفيذ المشروع قد بدأ في أبريل 2013، وشمل بناء ثلاثة طوابق إضافة إلى طابق تحت الأرض على مساحة 11 ألفاً و400 متر مربّع يحيط بها شارعان بعرض 24 متراً لكل منهما على الجانبين الشرقي والجنوبي للموقع. وقد بلغ إجمالي المساحة الانشائية للمبنى 19 ألفاً و283 متراً مربعاً. أحد مداخل مبنى الاستشارات العائلية ويضمّ المبنى ثلاثة مداخل وأقساماً للاستشارات والارشادات، الأبحاث والتطوير، تقنية المعلومات، المكتبة، مجلس الإدارة، شؤون الموظفين والمالية، إضافة إلى قاعة للمحاضرات وحضانة للأطفال. وتشمل العناصر المعمارية الأساسية للمبنى تصميماً تراثياً للواجهات الخارجية وحدائق داخلية مع بركة ماء في الوسط وكافتيريا رئيسيّة تحيط بها مساحة مفتوحة. وتحتوى قاعة المحاضرات على اثنتين من الثريّات الكبيرة. مدخل مبنى الاستشارات العائلية من الداخل وقد تولّت تصميم المركز الجديد شركة "الاتحاد للاستشارات الهندسية"، وأشرفت عليه كجهة استشاريّة شركة "جيمس كوبيت وشركاه"، بينما تعهّدت أعمال الانشاء شركة "بوم للمقاولات العامّة.
1583
| 28 يونيو 2015
أعلنت هيئة الأشغال العامة "أشغال" عن تنفيذ تحويلة مرورية على دوار لعبيب لمسافة تمتد حوالى مائتي متر في الشوارع القادمة والمتفرعة من الدوار، أي على شارع الطرفة والشارع المعروف بشارع الجامعة العربية (بالاتجاهين) وشارع الدحيل وذلك ضمن أعمال مشروع تطوير الطرق المحيطة بنادي لخويا الرياضي في منطقة دحيل . وأوضحت الهيئة أن تطبيق هذه المرحلة من التحويلات المرورية سيبدأ اعتباراً من مساء غد الأحد عند منتصف الليل تقريبا . من ناحية أخرى أعلنت "أشغال" أنه وضمن أعمال مشروع تحديث شبكة الصرف الصحي القائمة في منطقة نجمة داخل مدينة الدوحة، سيتم إغلاق جزء من شارع الخالدية يمتد على 425 مترا من تقاطع الشارع مع شارع الهلال وحتى تقاطع شارع الخالدية مع شارع المنصورة وذلك في المسار المتجه جنوبا نحو الدائري الثالث، ما سيجعل هذا الجزء من الشارع مفتوحاً باتجاه الشمال فقط نحو شارع المنصورة. كما سينفّذ إغلاق جزئي في الشارع عينه عند التقاطع مع الدائري الثالث عند مدخل شارع الخالدية الذي يتجه شمالا نحو شارع المنصورة علما أنه سيكون هناك إغلاق آخر في جزء من شارع الخالدية عند التقاطع مع شارع الصاحب بن عبّاد وفي جزء كامل من هذا الشارع . كذلك سيغلق اتّجاه واحد من شارع الكناري المتفرع من شارع الخالدية وسينفّذ إغلاق جزء من شارع السناء المتفرع من الشارع عينه. وبينت الهيئة أن هذه الإغلاقات ستبدأ بعد غد الإثنين وتستمر لغاية 14 سبتمبر القادم.
212
| 27 يونيو 2015
مساحة إعلانية
قدم اللاعب الأردني سليم عبيد اعتذاره عن الموقف الذي صدر من بعض لاعبي المنتخب الأردني، الذين رفضوا مصافحة مدرب المنتخب المغربي طارق السكتيوي،...
16032
| 20 ديسمبر 2025
أعلنت أرصاد قطر أن غدا الأحد 21 ديسمبر 2025 يصادف حدوث ظاهرة الانقلاب الشتوي وهي نهاية فصل الخريف وبداية فصل الشتاء فلكياً. وأوضحت...
12694
| 20 ديسمبر 2025
تضع وزارة الداخلية مجموعة من الضوابط والشروط الخاصة باستقدام عائلات المقيمين لغرض الإقامة أو الزيارة، وذلك من خلال التقديم على تطبيق مطراش، وذلك...
12016
| 21 ديسمبر 2025
تتيح خدمة طلب التحاق بسوق العمل للمقيمين في دولة قطر على إقامات عائلية فرصة الالتحاق بسوق العمل من خلال تقديم طلب لوزارة العمل،...
10214
| 21 ديسمبر 2025
تابع الأخبار المحلية والعالمية من خلال تطبيقات الجوال المتاحة على متجر جوجل ومتجر آبل
أصدر حضرة صاحب السمو الشيخ تميم بن حمد آل ثاني أمير البلاد المفدى، اليوم، القرار الأميري رقم (66) لسنة 2025، بتعيين سعادة اللواء...
8348
| 21 ديسمبر 2025
بدأت المؤشرات الديموغرافية تلفت الانتباه إلى تراجع ملحوظ في معدلات الخصوبة بين المواطنين، رغم استمرار الارتفاع في إجمالي عدد السكان. وتشير تقارير وإحصاءات...
6334
| 21 ديسمبر 2025
أعلنت اللجنة المنظمة لاحتفالات اليوم الوطني بالدولة، أمس الخميس إلغاء الفعاليات المقامة في درب الساعي، التي تنظمها وزارة الثقافة خلال الفترة من 10...
5860
| 19 ديسمبر 2025